Вы можете записаться на просмотр интересующей вас площади
Мы получили Ваше обращение и свяжемся с Вами в ближайшее время
При отправке обращения произошла ошибка. Попробуйте перезагрузить страницу и отправить обращение снова.
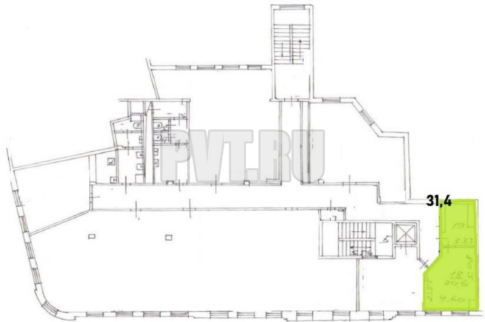
31,4 м²
Класс
Налоговая
Год постройки
Общая площадь
Полезная площадь
Количество этажей